Tractor wiring schematics for brigs amp straton auto electrical briggs and stratton charging system wiring diagram. 800 x 600 px source.
Ignition Wiring Basic Wiring Diagram Briggs Amp Stratton
Briggs and stratton wiring diagram. When key switch is turned closes to start engine and energizes solenoid releasing key switch opens switch solenoid de energizes. On the other hand the diagram is a simplified variant of the arrangement. Trend briggs and stratton ignition coil wiring diagram vintage briggs and stratton magneto wiring diagram wiring diagram contains many in depth illustrations that display the relationship of various products. Normally open momentary switch. Carlplantme wiring diagram for ride on mower annavernon readingrat size. 800 x 600 px source.
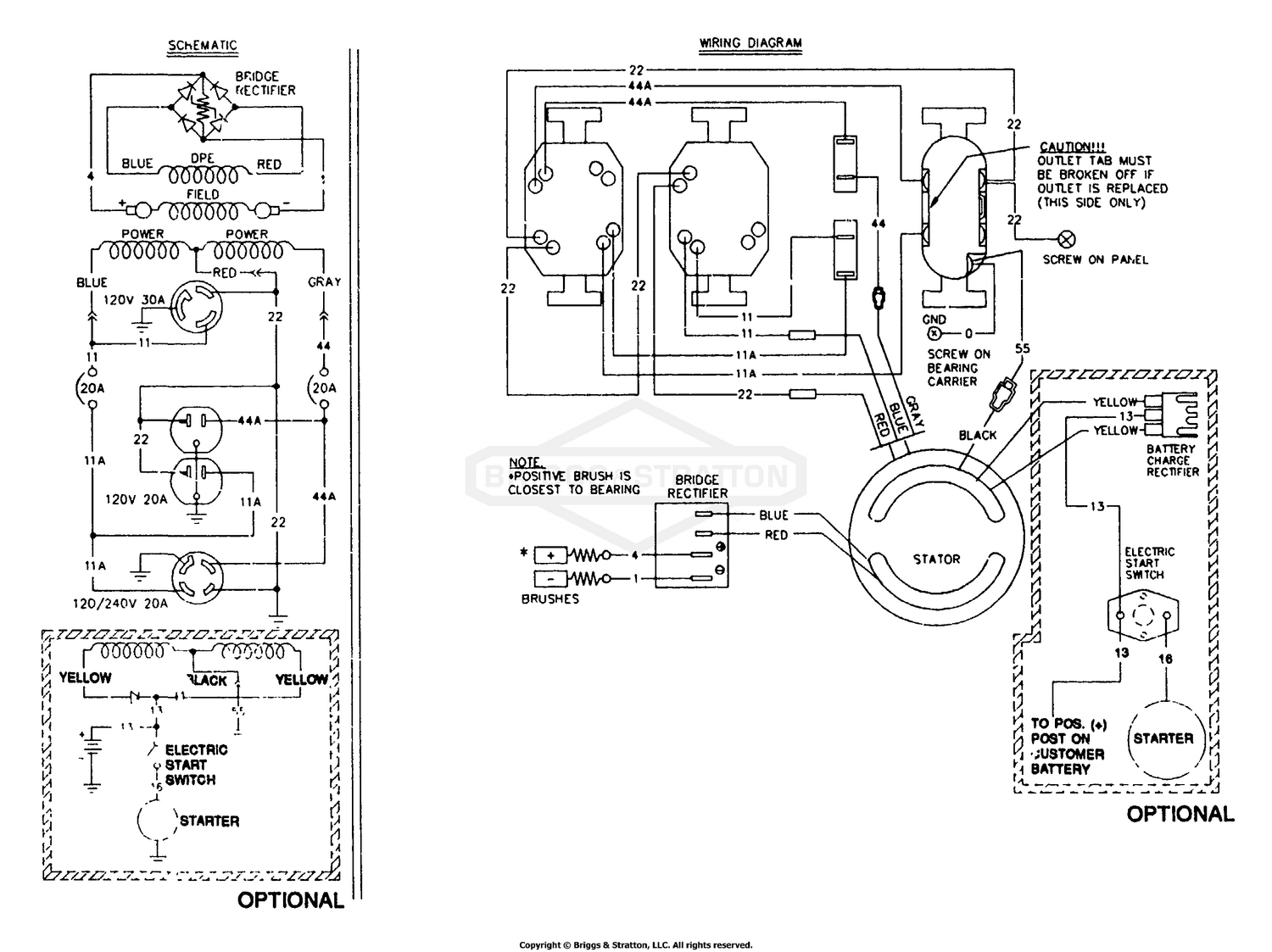
Briggs stratton sells electrical components only for engines. For a more detailed schematic specific to your piece of equipment your best source of. In addition to wiring diagrams alternator identification information alternator specifications and procedures for the replacement of an older briggs stratton engine with a newer briggs stratton engine that utilizes a different style alternator output connector are also available in this guide. Itll also include materials you might have to full simple assignments. 800 x 600 px source. Briggs and stratton power products 030638 00 8000 watt briggs briggs and stratton wiring diagram the diagram offers visual representation of an electric structure.
It consists of instructions and diagrams for various types of wiring methods as well as other products like lights windows and so on. For briggs stratton discount parts call 606 678 9623 or 606 561 4983. Wiring diagram for briggs and stratton 18 hp readingrat size. This makes the procedure for building circuit easier. It shows the components of the circuit as simplified shapes and the facility and signal associates between the devices. Wiring diagram for briggs and stratton 18 hp readingrat net size.
Wiring diagram contains each illustrations and step by step instructions that would enable you to really develop your project. If you are replacing or rebuilding parts of the small engine on your lawn mower snow blower or other outdoor power equipment the basic schematics or wiring diagrams of our alternator systems are available in our guides below. Briggs and stratton electric start wiring diagram wiring diagram is a simplified gratifying pictorial representation of an electrical circuit. How electrical system is wired for briggs and stratton briggs stratton service manual httpsebayto2lh1mmn.














