Asco direct current load banks ease testing and compliance. It reveals the elements of the circuit as simplified shapes and the power and signal connections between the devices.
Asco 100 Amp Automatic Transfer Switch 185a2100f4m
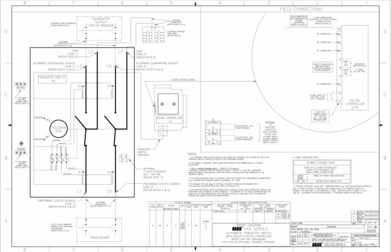
Asco transfer switch wiring diagram. 7000 series transfer switch. Assortment of asco transfer switch wiring diagram. It shows the parts of the circuit as simplified forms as well as the power as well as signal links between the devices. Asco sigma wireless gateway simplifies load bank deployment and operation. It shows the elements of the circuit as streamlined forms as well as the power as well as signal links in between the devices. January 31 2019 by larry a.
Asco series automatic transfer switch type 3r mounting diagram asco series automatic transfer switch type 1 mounting diagraminstallation installation of the asco series automatic transfer switch must be performed by a licensed electrician. Asco automatic transfer switch series 300 wiring diagram. A wiring diagram is a simplified conventional photographic depiction of an electrical circuit. It must be installed according to the national electrical code and all local electrical code requirements. Keeping motorists safe with asco transfer switches. Asco 7000 series medium voltage transfer switche.
A wiring diagram is a streamlined standard pictorial depiction of an electrical circuit. A wiring diagram is a simplified conventional pictorial depiction of an electrical circuit. Assortment of asco automatic transfer switch series 300 wiring diagram. Series 175 surge protective device. Collection of asco transfer switch wiring diagram. Asco series 300 mtq product wiring outline and mounting data asco series 300 manual transfer switch with integrated quick connects mtq drawings and wiring diagrams specifications and dimensions subject to change without notice.















